融信海发缦山兰庭140平方三室极简风格装修案例
更新时间:2021-12-26 15:35:04
设计师为喜爱手冲咖啡、烹饪的业主,将映入眼帘贯穿全室的加长型中岛和层次交错的铁件吊架作了亲密结合,原小四房两厅的格局,将客厅与一房打通,始封闭式厨房转向及敞开,重新设定公领域的动线,规划出流畅的使用空间;也将大量的采光引入室内生活核心。

而加长延伸的中岛不但使工作抬面充足,也增加了收纳与展示的机能,以梁作为对齐视觉引导然进入卧室。全室的色调与材质,皆使用黑色铁件搭配低彩度颜色墙面手法,打造柔中带刚,刚中又不失温度的空间调性,让业主可以快乐拥有独特的微工业咖啡小屋。

融信海发缦山兰庭三室极简风格装修实景图——电视背景墙

融信海发缦山兰庭三室极简风格装修方案——客厅

融信海发缦山兰庭三室140m²装修实景图——客厅全景

青岛融信海发缦山兰庭小区装修方案——次卧

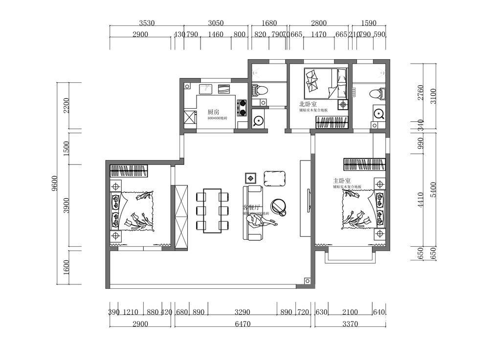
融信海发缦山兰庭140平极简风格装修案例——平面户型设计

融信海发缦山兰庭三室极简风格装修案例——主卧
2175
* 为了您的权益,您的隐私将被严格保密,请放心填写
你家预算
108080元
免费电话报价
400-168-9677
×