案例分享┃情迷洛可可 双层叠墅 打造梦幻宫殿
日期 :2021-10-31 00:00:00 来源 :青岛麦峰装饰
MAIFUNG

麦峰装饰旗下高端品牌
- 颂巢别墅大宅 -高端设计研发中心 · 以大宅装修为核心别墅┃洋房┃高端写字楼┃大户型住宅标准化硬装┃定制化全装┃一体化软装┃全屋智能化以数万套经典实景作品引领行业设计潮流配套“七星级服务工程”施工规范成功为数万户全国消费者提供整体集成化服务
项目资料

作品名称:Love Rcoco 情迷洛可可
项目地址:中国.青岛.城阳
搭建后面积:一层69㎡+二层61㎡
设计风格:法式轻奢风格
服务模式:全案设计及施工服务
温暖 | 优雅 | 奢享 | 浪漫
设计思路

洛可可风格反映的是法国路易十五代时宫廷贵族的生活趣味,曾受到许多欧洲人的推崇与喜爱。其他代表作是凡尔赛宫的王后居室。

保留了法式洛可可式的华丽繁巧的精致视感,加入了当代色彩视觉系统以及线条装饰等,汇集了浪漫浮华的情调,更加贴合现代人的生活习惯和审美要求,成就现代都市格调的浪漫居所。
色彩分析

色卡:丁香灰+亮白色+玳瑁色+代尔夫特蓝+古金色

这间客厅是位于纽约海滨的住宅,丁香灰色看上去冷淡而优雅,使这个不大的地方看起来别致且风格明确。代尔夫特蓝的天鹅绒贵妃椅和金属软木墙纸书柜在窗前构成了舒适的阅读角和观景角,金色的迷你弯折茶几是一个精致的点缀。镶蓝边的印花窗帘与壁炉上的抽象画赋予空间以田园感和艺术感。
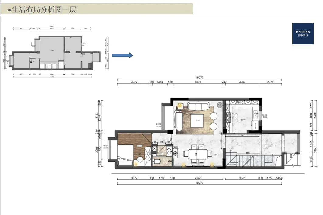
一层生活布局分析图及动线图


一层室内空间效果图
门厅玄关

打开家门,于转角之间,弥漫着复古、精致主义的调调,一种贵族的气质铺面而来,改造后的楼梯与鞋帽柜收纳融为一体,更显精致奢华。
客餐厅

精心设计的顶面石膏花线与吊顶交相呼应,层次丰富,细节上讲究细致精美,加以金箔及艺术漆的处理,更显奢华质感。

餐厅空间布局上突出对称,墙面的经典法式三段式造型,将法式的优雅气息弥漫至整个房间。

空间在低调优雅的灰白基底包围之下,贵族蓝与金色装点,弥漫一室浪漫情韵。气质典雅的欧式描金石膏线条置入空间,沙发上的流苏点缀,就像乐谱上巧妙安排的装饰音,令空间的旋律舒缓而灵动。壁上相对的挂画,一幅似色彩的恣意相融,宣扬自我;一幅似倾洒而出的酒香,妩媚迷人又轻雅愉悦,自然而然地渗透到每个角落。

布艺上喜欢用昂贵精美的真丝、丝绵、丝绒等,更显雍容华贵。舒适、优雅、安逸,就像一场盛大的宫廷舞会,一群贵妇身着华丽的蓬蓬裙,享受人生的精彩。
厨房

男孩房

男孩房以活泼的蓝色为主,打造舒适活力的空间。
二层生活布局分析图及动线图


二层空间效果图
主卧

主卧用乳胶漆的色彩,床头增加奢华元素的金属线条勾勒,并将窗帘位置挪至飘窗处,打造时尚柔和的睡眠空间,华贵中不失格调。
女儿房

进入女儿房,烟粉、香芋紫、嫣红。色调层层推进,与材料语汇融合缠绵,令美的余韵从渐变韵律中焕发出来。

壁柜上马赛克图纹与藕粉色的碰撞、小灯笼似的花艺、勾勒着梦幻色彩的画饰,含蓄的美感于其中悄然而生,轻语空间不朽的浪漫诗意。
设计师 Senior Designer
方书亚

頌巢別墅高端大宅製造所設計總監专注别墅设计15年国际建筑室内装饰 - 高级室内设计师圣诺佳成国际艺术设计研学FANGSHUYA DESIGN
设计理念:居住空间是人文情感的寄托之所,是不断生内化生长的烙印。用设计回归空间,触摸各个维度,追寻居所栖息的真谛。生动近人,在辩证回环之中,实现人与空间的契合相生。
免费
免费申请户型规划
专属设计师免费1对1全程服务
已经有2175人申请
24小时免费咨询电话
400-168-9677
2175
* 为了您的权益,您的隐私将被严格保密,请放心填写
你家预算
108080元
免费电话报价
400-168-9677
×