24小时装修热线

400-168-9677

当前位置 : 网站首页 > 装修案例 > 中建锦绣城112平方三室简约风格装修案例

中建锦绣城112平方三室简约风格装修案例

更新时间:2021-12-30 19:17:34

  • 案例风格
    案例户型
    案例面积
    楼盘名称
    设计师
  • 现代简约
    三居室
    112m²
    中建锦绣城
    纪恒本

青岛中建锦绣城112m²三室装修样板间

青岛中建锦绣城112m²三室装修样板间——客厅

中建锦绣城三室简约风格装修实景图

中建锦绣城三室简约风格装修实景图——客餐厅

中建锦绣城三室简约风格装修方案

中建锦绣城三室简约风格装修方案——沙发背景墙

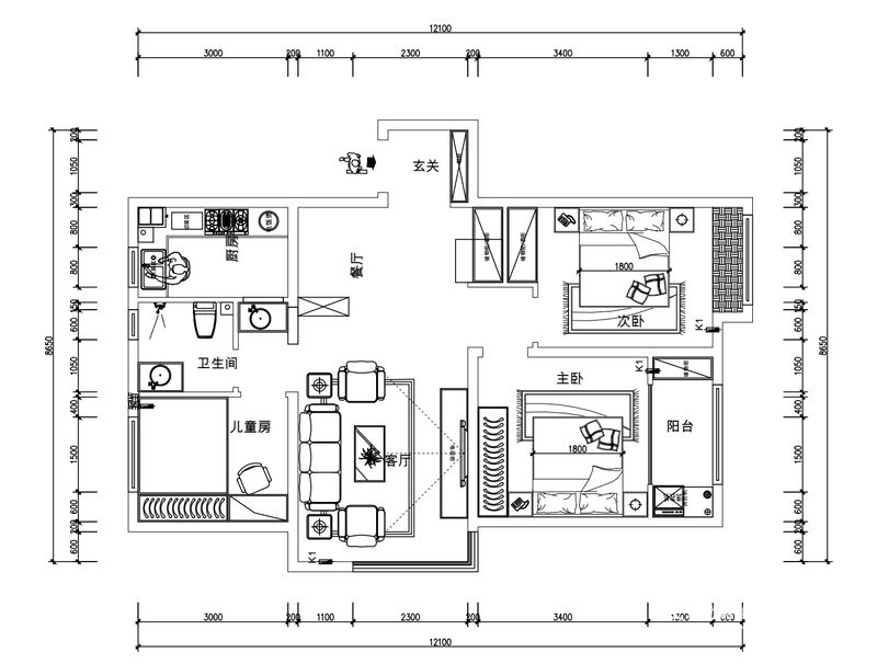
中建锦绣城三室112m²装修实景图

中建锦绣城三室112m²装修实景图——平面户型设计方案

中建锦绣城112m²三室装修实景图

中建锦绣城112m²三室装修实景图——餐厅

本案例设计师

纪恒本

[主任设计师]

从业资质:3年

擅长风格:现代、简约、轻奢、新中式、轻法式、美式

在线计算报价

免费获取装修方案

您的装修价格:

7 3 5 5 1

*我们承诺以上信息绝对保密请放心填写

友情链接 :
Copyright@ 2021 青岛麦峰装饰设计工程有限公司 All Rights Reserved. 备案号: 鲁ICP备20033322号-1

2174

咨询热线:400-168-9677

*为了您的权益,您的隐私将被严格保密

我已阅读并同意 《免责申明》

* 为了您的权益,您的隐私将被严格保密,请放心填写

你家预算

108080

免费电话报价

400-168-9677

×