凯景领盛华府100平方三室简约风格装修案例
更新时间:2022-01-01 09:07:08
客户是还没有结婚的年轻人,他家设计风格没有过多的装饰物,主要以简单的线条和装饰简洁的造型来体现出现代简约型的设计。采用留白的设计来营造出空间中的个性与宁静,选用温暖的黄色为主色调,可以在整体居室环境中采用灰色的地砖铺贴,在加上蓝白相间的窗帘,与地面的灰色相辅相成,同时家具和天花板、墙面都采用白色,使得空间中的设计相得益彰。同时还可以选择明快的蓝色、豆绿色作为家居装修中的辅色调,使得整体温暖 又不失浪漫。

青岛凯景领盛华府100m²三室装修样板间——客厅

凯景领盛华府三室简约风格装修实景图——沙发背景墙

凯景领盛华府三室简约风格装修实景图——入户及餐厅

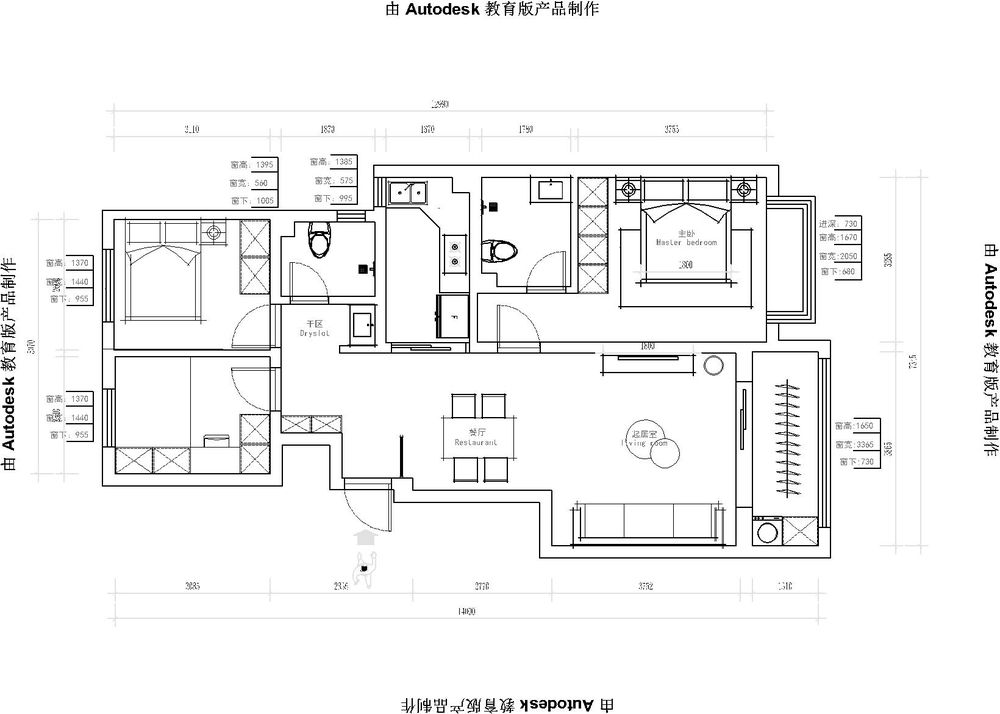
凯景领盛华府三室100m²装修实景图——平面户型设计

凯景领盛华府100m²三室装修实景图——厨房
2175
* 为了您的权益,您的隐私将被严格保密,请放心填写
你家预算
108080元
免费电话报价
400-168-9677
×